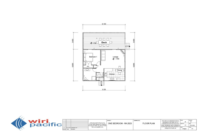
One bedroom kitset plans
Below are our One Bedroom kitset plans, elevations and artist impressions. Please note that we have an onsite architectural draughtsman who, for a small fee, can assist in modifying our One Bedroom plans.
RA
Furnishings/Fittings
We are able to supply furniture, whiteware, electrical appliances and other furnishings and fittings. From the customer, we require the brand and or price/range of the items you wish to purchase. If we cannot source for you the exact product you are after, we will price you on a similar alternative brand or product.
Kitset Showhome
If you’re in New Zealand and would like to see a fully furnished kitset home, visit our Manukau branch located at 32 Noel Burnside Road, Manukau City, Auckland. Scroll to view the location map.
Standard Kitset Plans
To view the standard plans used in our various kitset homes please click on any of the links below:
Studio kitset plans
One bedroom kitset plans
Two bedroom kitset plans
Three bedroom kitset plans
Four bedroom kitset plans


